Trilocale in vendita

Cernusco Sul Naviglio, Via Visconti
€ 345.000
3 locali 3 locali
99 Mq 99 Mq
2 bagni 2 bagni

Trilocale in vendita

Cernusco Sul Naviglio, Via Visconti

Descrizione annuncio

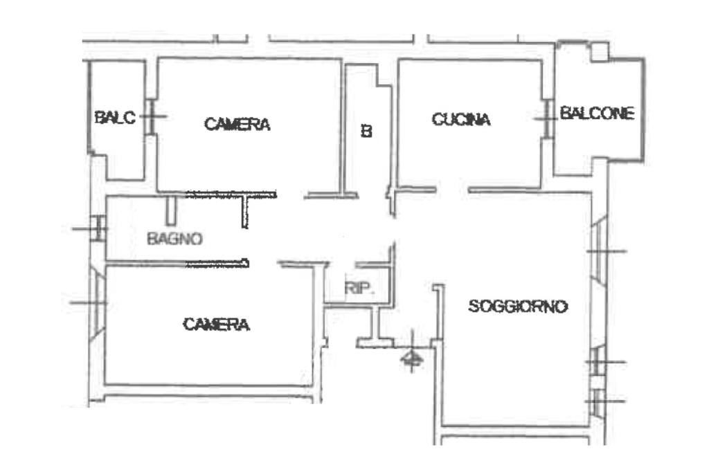
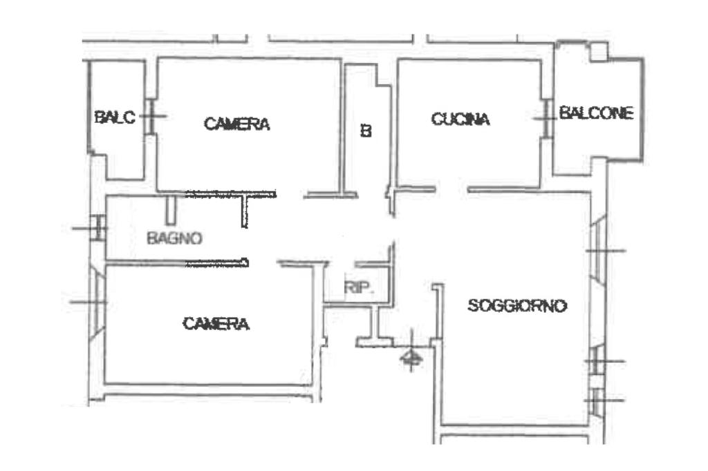
L'appartamento si trova al terzo e ultimo piano di una palazzina dotata di ascensore in zona verde e residenziale, a pochi minuti a piedi dal centro storico e con ampio giardino condominiale.

In ottime condizioni, gode di un'esposizione sud per il comodo soggiorno con zona pranzo e per la cucina abitabile aperta su un terrazzino dotato di tende da sole e affacciato sul verde condominiale.

Un ampio disimpegno porta alla zona notte con esposizione nord, composta dalle due camere matrimoniali con parquet, il bagno finestrato con vasca e il secondo bagno cieco, sfruttabile come lavanderia, oltre ad un pratico ripostiglio.

Il pavimento, ad eccezione di camere e cucina, è in marmo, gli infissi sono doppio vetro legno, inferriate sulle porte finestre dei balconi, aria condizionata canalizzata per tutto l'appartamento. Termoautonomo.

Box singolo e cantina inclusi nella richiesta.

Le informazioni, le immagini, le planimetrie e, più in generale, quanto inserito nel presente annuncio non costituiscono elemento contrattuale.

Mostra tutto

Nelle vicinanze

Trasporto pubblico Trasporto pubblico
Cernusco sul Naviglio
Cernusco sul Naviglio
1,1 Km
Villa Fiorita
Villa Fiorita
2,0 Km
Via Visconti, 30 (Cernusco sul Naviglio)
Via Visconti, 30 (Cernusco sul Naviglio)
100 m
Via Colombo (Cernusco sul Naviglio)
Via Colombo (Cernusco sul Naviglio)
200 m
Approdo
1,6 Km
Ricariche auto elettriche Ricariche auto elettriche
CONAD Cernusco sul Naviglio | EnelX
1,6 Km
Esselunga di Pioltello
1,7 Km
EnelX EVA+ Q8 Carugate
2,3 Km
Eneldrive Ikea Carugate
2,3 Km
Carugate | ENELX
2,4 Km
Scuole Scuole
Scuola Elementare Mosè Bianchi
540 m
Scuola Primaria Alessandro Manzoni
610 m
Scuola secondaria di primo grado Piazza Unità d'Italia
920 m
Istituto di Istruzione Secondaria Superiore ITSOS Marie Curie
1,0 Km
Scuole
1,2 Km
Farmacia Farmacia
Tree Farma
410 m
Farmacia
690 m
Baboni
720 m
Parafarmacia di Via Roma
760 m
Farmacia Dr. Penati
970 m
Ospedali Ospedali
Ospedale Uboldo
760 m
Centro Sant'Ambrogio - Fatebenefratelli
1,9 Km
Supermercati Supermercati
Conad City
680 m
Altromercato
740 m
Penny
1,1 Km
Conad
1,3 Km
Supermercati
1,6 Km
Negozi Negozi
Carrefour Express
520 m
Sporting Bollini
560 m
Panificio Beretta
560 m
Fedeli Angelo di Fedeli Rossella
560 m
Denise moda
570 m
Bar Bar
Baretto
590 m
The Stork Club
620 m
Bar dell'Oratorio
630 m
Illy
670 m
Maxi Bar
730 m
Ristoranti Ristoranti
In Filanda
480 m
Ristoranti
550 m
Ristorante Due Spade
550 m
L'Officina dei Sapori
670 m
Peter Pan
740 m
Mostra tutto

Caratteristiche

Rif.:
61193792
Piano:
3 di 3 con ascensore (ultimo Piano)
Box:
1
Balconi:
1
Terrazzi:
1
Camere da letto:
2
Mostra tutto
Prezzo Prezzo
€ 345.000
Rata mutuo Rata mutuo
€ 1.626 / mese
Spese annue Spese annue
€ 2.000
Proponi il tuo prezzoProponi il tuo prezzo

Classe Energetica

D
D
D
D
D
D
D
D
D
EP globale non rinnovabile:
107.42 kW h/m² anno
EP globale rinnovabile:
9.66 kW h/m² anno
EP invernale del fabbricato:
EP estiva del fabbricato:
Anno di costruzione:
1981
Riscaldamento:
Autonomo
Tipo impianto:
A radiatori
Tipo alimentazione:
Metano

Ti interessa visionare l'immobile?

Fissa un appuntamento  Fissa un appuntamento

Richiedi informazioni

Clicca su Leggi per aprire l'informativa
* Questi campi sono obbligatori

Calcola il tuo mutuo

Semplice e senza impegno
Anticipo

( % )
Mutuo

( % )

pochi semplici passi

inserisci i tuoi dati
Questionario completato
Grazie per aver richiesto un appuntamento senza impegno con un nostro Consulente del Credito e Assicurativo.

Hai inserito correttamente tutti i dati necessari e a breve riceverai una e-mail con un link da convalidare per inviare i tuoi dati.
Affiliato
Cernusco Mm2 Srl
P.zza Matteotti, 12 20063 Cernusco Sul Naviglio (MI)

Il nostro staff


  • Ares Brambilla
    Affiliato

  • Francesca Romagnoli
    Responsabile
P.zza Matteotti, 12 20063 Cernusco Sul Naviglio (MI)
Zona: Cernusco Sul Naviglio
Mostra su mappa
Affiliato
Cernusco Mm2 Srl
P.zza Matteotti, 12 20063 Cernusco Sul Naviglio (MI)

2026 Tecnocasa Franchising S.p.A. - P. IVA 08365160152 - Via Monte Bianco 60/A 20089 Rozzano (MI). Ogni agenzia ha un proprio titolare ed è autonoma. Privacy policy | Policy utilizzo | Cookie policy